Description
Superbe duplex ayant bénéficié de nombreuses rénovations au fil des ans. Le logement principal impressionne par ses 5 chambres à coucher, 2 salles de bain, une salle familiale et de vastes espaces de vie lumineux, parfaits pour accueillir toute la famille. À l'extérieur, découvrez une cour arrière de rêve aménagée pour profiter pleinement de l'été, avec spa et piscine, idéale pour créer des moments inoubliables. Les deux logements seront disponibles pour l'acheteur, une opportunité parfaite pour loger un proche ou générer un revenu supplémentaire. Prise de possession peut être flexible. Un produit extrêmement rare sur le marché!
Travaux et améliorations
La propriété a bénéficié de nombreuses rénovations et améliorations au fil des années, offrant aux futurs acheteurs une tranquillité d'esprit et un immeuble bien entretenu.
2015 Rénovations majeures comprenant :
* Cuisine entièrement rénovée
* Salles de bain du rez-de-chaussée et du sous-sol modernisées
* Remplacement de tous les planchers
* Réaménagement de certaines divisions intérieures
* Mise à jour d'une partie de l'électricité et de la plomberie
* Installation d'un clapet anti-retour
* Drain français refait
* Remplacement du revêtement extérieur
2016
* Réfection de la toiture
2017
* Installation de la piscine
* Construction de la terrasse extérieure
2020
* Ajout d'une pergola
* Agrandissement de la terrasse
* Installation du spa
2021
* Installation de deux thermopompes murales, une dans chaque logement, offrant un confort optimal été comme hiver
2022
* Installation d'une rampe d'accès extérieure pour fauteuil roulant
2023
* Remplacement de la porte d'entrée du logement du 2e étage
2025
* Achat et installation d'une thermopompe pour la piscine, permettant de prolonger la saison estivale
Ces nombreuses améliorations témoignent du soin apporté à la propriété au fil des ans. Une opportunité idéale pour les acheteurs recherchant un immeuble bien entretenu, offrant confort, espace et plusieurs possibilités d'occupation ou de revenus.
Inclus : Piscine et ses accessoires, thermopompe de la piscine, deux thermopompes murales, luminaires, stores, pôles et rideaux, miroir et meubles à souliers du 9402, aspirateur central et accessoires, spa et accessoires, table haute de bbq sur le patio, poêle et frigo et laveuse-sécheuse du logement du haut (9404), 2 étagères Ikea dans la chambre-bureau au sous-sol et étage Ikea au ss dans la salle familiale.
Location
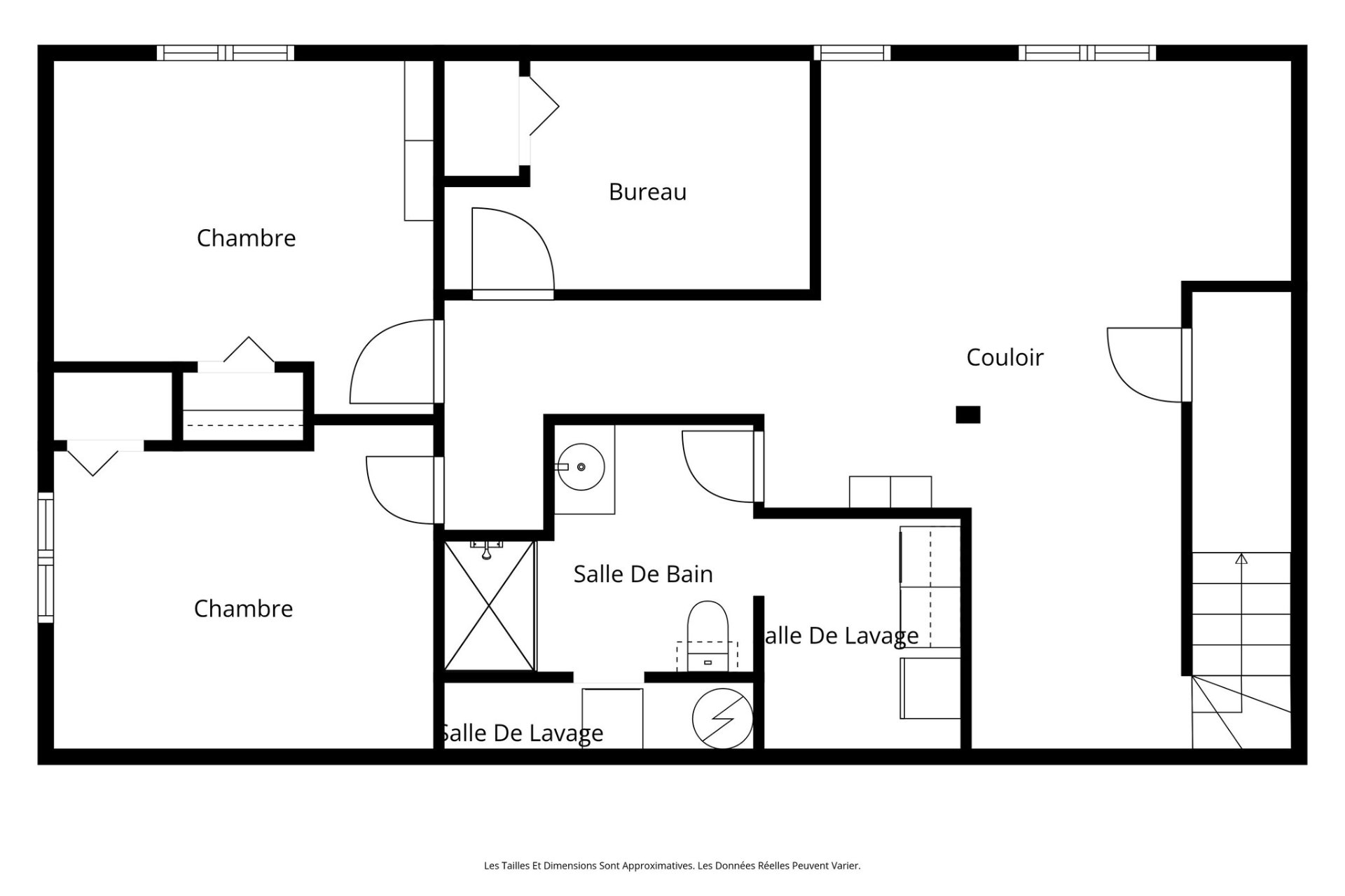
Détails des pièces
| Chambre | Dimensions | Niveau | Revêtement |
|---|---|---|---|
| Hall d'entrée | 4.4 x 10.4 P | Rez-de-chaussée | Céramique |
| Cuisine | 11.8 x 11.1 P | 2ième étage | Couvre-sol souple |
| Hall d'entrée | 4.4 x 10.4 P | Rez-de-chaussée | Céramique |
| Cuisine | 11.8 x 11.1 P | 2ième étage | Couvre-sol souple |
| Salle à manger | 13.1 x 11.10 P | Rez-de-chaussée | Bois |
| Salle à manger | 11.8 x 6.8 P | 2ième étage | Couvre-sol souple |
| Salle à manger | 13.1 x 11.10 P | Rez-de-chaussée | Bois |
| Salle à manger | 11.8 x 6.8 P | 2ième étage | Couvre-sol souple |
| Salon | 10.1 x 10.3 P | 2ième étage | Couvre-sol souple |
| Cuisine | 11.10 x 11.10 P | Rez-de-chaussée | Céramique |
| Salon | 10.1 x 10.3 P | 2ième étage | Couvre-sol souple |
| Cuisine | 11.10 x 11.10 P | Rez-de-chaussée | Céramique |
| Chambre à coucher | 16.8 x 11 P | 2ième étage | Plancher flottant |
| Salon | 20.8 x 11.4 P | Rez-de-chaussée | Bois |
| Salon | 20.8 x 11.4 P | Rez-de-chaussée | Bois |
| Chambre à coucher | 16.8 x 11 P | 2ième étage | Plancher flottant |
| Chambre à coucher principale | 12.3 x 11.2 P | Rez-de-chaussée | Bois |
| Salle de bains | 4.11 x 9.7 P | 2ième étage | Céramique |
| Chambre à coucher principale | 12.3 x 11.2 P | Rez-de-chaussée | Bois |
| Salle de bains | 4.11 x 9.7 P | 2ième étage | Céramique |
| Chambre à coucher | 12.1 x 8.1 P | Rez-de-chaussée | Bois |
| Chambre à coucher | 12.1 x 8.1 P | Rez-de-chaussée | Bois |
| Salle de bains | 11.11 x 7.9 P | Rez-de-chaussée | Céramique |
| Salle de bains | 11.11 x 7.9 P | Rez-de-chaussée | Céramique |
| Salle familiale | 11.5 x 18 P | Sous-sol | Plancher flottant |
| Salle familiale | 11.5 x 18 P | Sous-sol | Plancher flottant |
| Salle de bains | 4.11 x 9.7 P | Sous-sol | Céramique |
| Salle de bains | 4.11 x 9.7 P | Sous-sol | Céramique |
| Salle de lavage | 7.4 x 6.4 P | Sous-sol | Céramique |
| Salle de lavage | 7.4 x 6.4 P | Sous-sol | Céramique |
| Chambre à coucher | 12.3 x 9.10 P | Sous-sol | Plancher flottant |
| Chambre à coucher | 12.3 x 9.10 P | Sous-sol | Plancher flottant |
| Chambre à coucher | 12.3 x 9.10 P | Sous-sol | Plancher flottant |
| Chambre à coucher | 12.3 x 9.10 P | Sous-sol | Plancher flottant |
| Chambre à coucher | 9.3 x 7.5 P | Sous-sol | Plancher flottant |
| Chambre à coucher | 9.3 x 7.5 P | Sous-sol | Plancher flottant |
Caractéristiques
| Sous-sol | 6 pieds et plus, Totalement aménagé |
|---|---|
| Revêtements | Autre |
| Toiture | Bardeaux d'asphalte |
| Fondation | Béton coulé |
| Adapté pour personnes à mobilité réduite | Cuisine adaptée, Entrée adaptée, Rampe d'accès extérieure |
| Salle de bains/salle d'eau | Douche indépendante |
| Proximité | École primaire, École secondaire, Parc-espace vert, Piste cyclable, Transport en commun |
| Énergie pour le chauffage | Électricité |
| Stationnement | Extérieur |
| Piscine | Hors-terre |
| Équipement disponible | Installation aspirateur central, Thermopompe murale |
| Type de fenêtre | Manivelle |
| Système d'égouts | Municipal |
| Approvisionnement en eau | Municipalité |
| Aménagement du terrain | Paysager |
| Topographie | Plat |
| Mode de chauffage | Plinthes à convection, Plinthes électriques, Radiant |
| Fenêtres | PVC |
| Zonage | Résidentiel |
Cette inscription est présentée en collaboration avec EXP AGENCE IMMOBILIÈRE